Stavby
REKONSTRUKCE OBJEKTU KABIN Č.P. 1050 – RAKVICE

Klient: obec Rakvice
Místo: Rakvice na Břeclavsku
Realizace: Architektonická studie 2024
Sdílet:
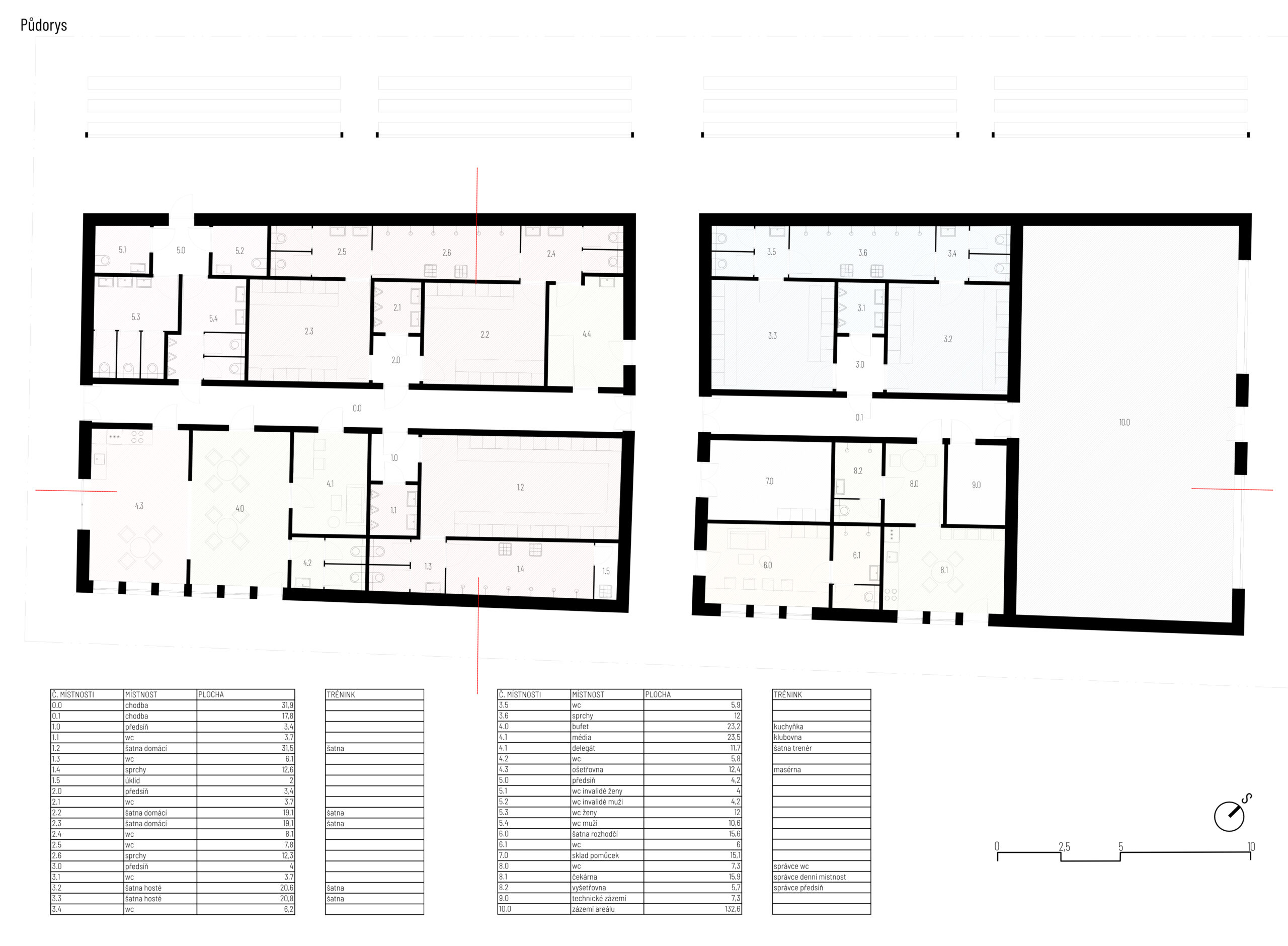
Architektonická studie navrhuje přízemní novostavbu v místě stávajícího objektu kabin. Od počátku byl kladen důraz na efektivní provozní uspořádání. Byly zohledněny podmínky Fotbalové asociace České republiky. Kapacity oproti stávající stavbě jsou zvýšeny. Objekt je usazen do prostoru mezi dvěma travnatými hřišti. Hřiště jsou vůči sobě vzájemně mírně pootočena. Na to reaguje objemem právě i nově navržený objekt kabin.
Stínění- Pásy oken jsou stíněny svislými pevnými lamelami.
Fasáda- Objekt je obložen světlým oplechováním.
Členění- Vertikální rastrování prvků pomocí sloupů, lamel, oplechování. Užití členění v exteriéru, tak i v interiéru.
Barevnost- Syté jednobarevné plošné prvky z laminátu či lakovaného dřeva, které sjednotí lavičky, skříňky, příčky u wc, dveře, okna.








